Photos Apartment Tatry Comfort - Tatranská Lomnica
Vysoké Tatry - Tatranská Lomnica 265 101
Situated in Vysoké Tatry and only 19 km from Treetop Walk, Apartment Tatry Comfort - Tatranská Lomnica features accommodation with garden views, free WiFi and free private parking. It is40 km from Bania Thermal Baths and provides full-day security. The property is non-smoking and is located 24 km from Strbske Pleso Lake.
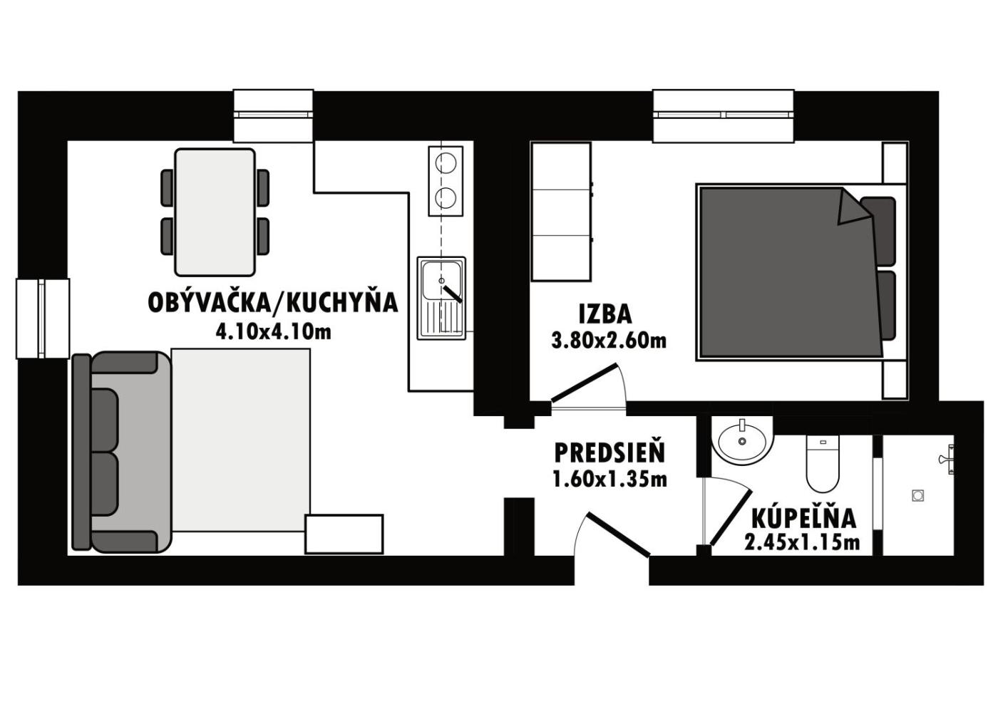
The recently renovated apartment features 1 separate bedroom, 1 bathroom, a fully equipped kitchen with a dining area and toaster, and a living room with a flat-screen TV. Towels and bed linen are offered in the apartment. The property offers quiet street views.
A ski equipment rental service and ski storage space are available at the apartment, and guests can go skiing in the surroundings.
Dobsinska Ice Cave is 48 km from Apartment Tatry Comfort - Tatranská Lomnica. Poprad-Tatry Airport is 16 km from the property.
The hotel day starts from hour 15:00 and ends at 10:00.
This property will not accommodate hen, stag or similar parties.
One-Bedroom Apartment. This apartment consists of 1 living room, 1 separate bedroom and 1 bathroom with a shower and free toiletries. In the kitchen, guests will find a stovetop, a refrigerator, kitchenware and a toaster. The apartment provides a flat-screen TV with satellite channels, a tea and coffee maker, a seating area, a dining area as well as garden views. The unit offers 2 beds.
Additional information about the offer Slovakia - Vysoké Tatry - Apartment Tatry Comfort - Tatranská Lomnica, opinions of holidaymakers as well as available dates can be found on the website our partner.
Book now
Offer from our partner: Booking.com BG.905087









